Andy Warhol Loft
Mentor: Robert Šimetin
Interieur 2
2023.
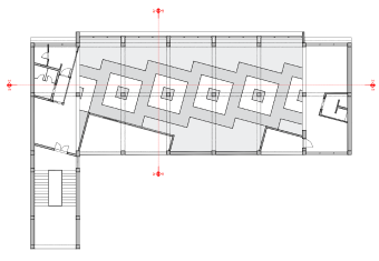
The loft is designed according to specific requirements that would suit the lifestyle of the pop art artist Andy Warhol. Referring to his Silver Factory where he spent most of his time, the design requirements for the space are defined. Predetermined activities that would be enabled in the loft include: silkscreen printing, film recording, displaying works, hosting concerts and events, and socializing with other artists. Additionally, the loft contains a private area that meets the basic living needs of a bohemian artist's lifestyle. The space reflects a way of life that entails constant creativity. Elements in the space are arranged in a manner that follows a grid opposing the given grid of the existing loft, thus achieving spatial dynamics. The lowered ceiling, designed with gypsum panels, also follows the added grid, and indirect LED lighting is integrated into it.
Drawing inspiration from the ambiance of his famed Silver Factory, the design blueprint for this space is meticulously crafted. It's envisioned as a haven where specific activities integral to Warhol's creative realm can flourish: envision silkscreen printing stations, areas dedicated to film recording, platforms for showcasing artistic endeavors, arenas for hosting vibrant concerts and events, and zones conducive to fostering connections among fellow artists. Moreover, the loft harbors a secluded enclave designed to cater to the fundamental living essentials synonymous with the bohemian artist's lifestyle.
lighting integrated into the lowered ceiling
The lighting system comprises integrated indirect LED fixtures nestled within a lowered ceiling constructed with gypsum panels. This lowered ceiling features a grid-like design, strategically facilitating the placement of these gypsum panels. The integration of indirect LED lights within this structure offers a sleek and modern illumination solution, providing both functionality and aesthetic appeal to the space.
Andy Warhol Loft
Mentor: Robert Šimetin
Interieur 2
2023.
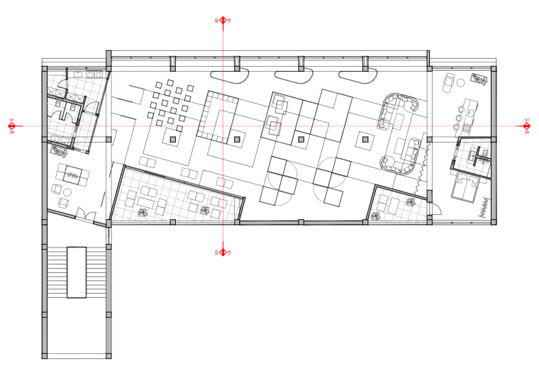
The loft is designed according to specific requirements that would suit the lifestyle of the pop art artist Andy Warhol. Referring to his Silver Factory where he spent most of his time, the design requirements for the space are defined. Predetermined activities that would be enabled in the loft include: silkscreen printing, film recording, displaying works, hosting concerts and events, and socializing with other artists. Additionally, the loft contains a private area that meets the basic living needs of a bohemian artist's lifestyle. The space reflects a way of life that entails constant creativity. Elements in the space are arranged in a manner that follows a grid opposing the given grid of the existing loft, thus achieving spatial dynamics. The lowered ceiling, designed with gypsum panels, also follows the added grid, and indirect LED lighting is integrated into it.
Drawing inspiration from the ambiance of his famed Silver Factory, the design blueprint for this space is meticulously crafted. It's envisioned as a haven where specific activities integral to Warhol's creative realm can flourish: envision silkscreen printing stations, areas dedicated to film recording, platforms for showcasing artistic endeavors, arenas for hosting vibrant concerts and events, and zones conducive to fostering connections among fellow artists. Moreover, the loft harbors a secluded enclave designed to cater to the fundamental living essentials synonymous with the bohemian artist's lifestyle.
lighting integrated into the lowered ceiling
The lighting system comprises integrated indirect LED fixtures nestled within a lowered ceiling constructed with gypsum panels. This lowered ceiling features a grid-like design, strategically facilitating the placement of these gypsum panels. The integration of indirect LED lights within this structure offers a sleek and modern illumination solution, providing both functionality and aesthetic appeal to the space.